PRODANO – kuća, samostojeća, Velika Mlaka
- 240.000€
Prodaja, kuća, samostojeća, Velika Mlaka
Sastoji se od podruma (7,32 m2), prizemlja, kata i tavana.
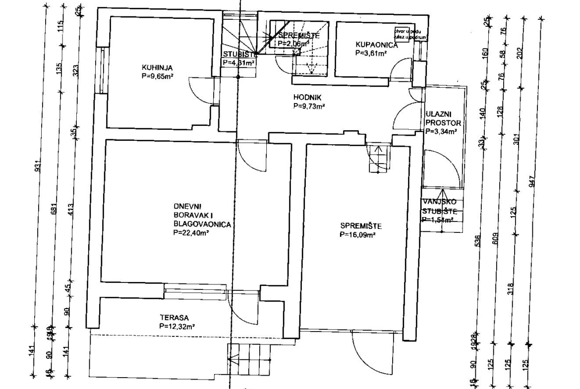
U prizemlju je veliki dnevni boravak (22,40 m2) s izlazom na terasu (12,32 m2), kuhinja (9,65 m2), kupaonica s WC-om (3,61 m2), hodnik (9,73 m2), stubište za kat (4,31 m2), spremište (2,06 m2), ulazni prostor (3,34 m2) i garaža (16,09 m2).
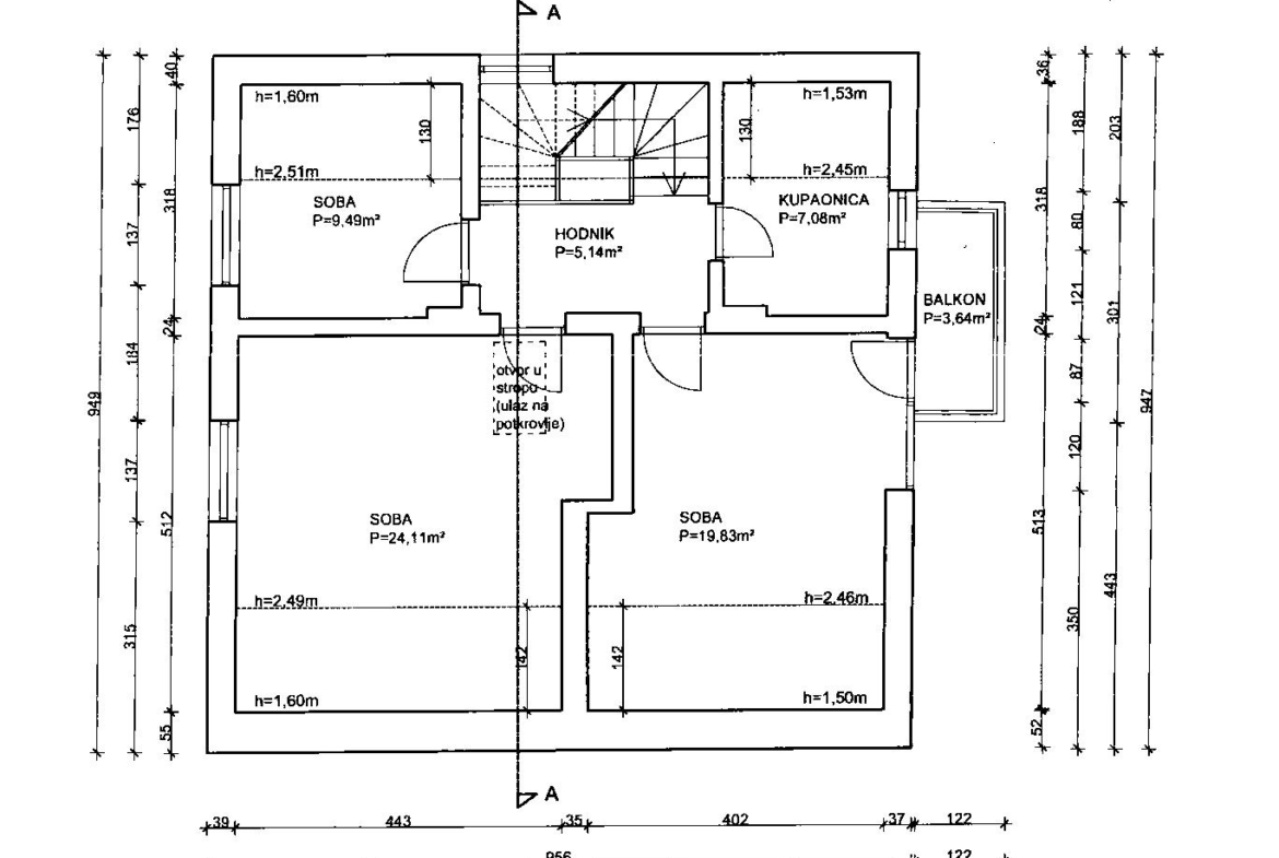
Kat se sastoji od sobe 1 (9,49 m2), sobe 2 (24,11 m2), sobe 3 (19,83 m2), kupaonice s WC-om (7,08 m2), hodnika (5,14 m2) i balkona (3,64 m2).
Tavan je površine 35,55 m2 (8,91 m x 4,13 m), podna obloga brodski pod, visina na središnjem dijelu 2,12 m.
U dvorištu je pomoćni objekt – spremište dimenzija 5,17 m x 3,42 m.
Grijanje plinsko etažno uz dodatak peći na drva u prizemlju.¸
Nosivu konstrukciju čine vanjski i unutarnji zidovi od blok opeke međusobno povezani armirano-betonskim serklažima.
Stropna konstrukcija je armirano-betonska ploča debljine 20 cm.
Konstrukcija krovišta je drvena dvostrešna , pokrov crijep stavljen 1993.
Fasada stiropor 10 cm iz 2013.
Kuća je priključena na vodovod, kanalizaciju, gradski plinovod i električnu mrežu.
LOKACIJA: vrlo mirno okruženje, slijepa ulica, dvorište i vrt pogodni za obiteljska i prijateljska druženja.
Vl.list, Rješenje o izvedenom stanju, mogućnost kupnje putem kredita.
Kupac plaća agencijsku naknadu u iznosu 2 % od kupoprodajne cijene bez PDV-a. Agencija odrađuje upis vlasništva i prebacivanje svih režija na ime kupca, izradu cjelokupne kupoprodajne dokumentacije, te potpunu podršku i pomoć u realizaciji kredita.
INTERKLASIK NEKRETNINE
Froudeova 7, Zagreb
KONTAKT : 098 171 0323 , 091 50 89720, 01 789 02 96
www.interklasik.hr
E-mail : info@interklasik.hr